Aue:
ERFÜLLEN SIE SICH IHREN TRAUM VON KINDERLACHEN IM EIGENEN HAUS IM GRÜNEN! TEL. 0171 4863595
Objekt-Nr.: 30269-23357

Ihr zuverlässiger Partner beim Hausbau, Göran Linke

Und bald steht hier Ihr Traumhaus!

Ihr Platz zum Leben und Lieben

Ansicht Vorn

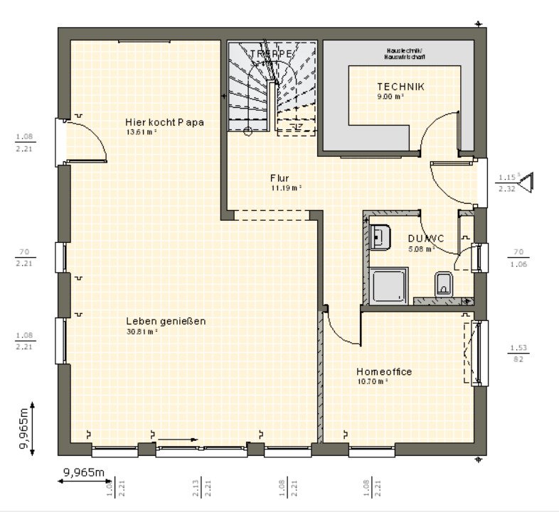
Erdgeschoss

Dachgeschoss

Home-Office vom Feinsten....

Wohnen und Kuscheln

Kochen

Und hoch geht es...

Dachgeschoss Treppenhaus

Gute Träume

Kinderzimmer

Traumbad

Kinderzimmer















Preis:
465.490 €
Wohnfläche ca.:
154 m²
Grundstück ca.:
748 m²
Zimmeranzahl:
5
In dieses ungewöhnliche Haus werden Sie sich auf Anhieb verlieben, denn hier ist reichlich Platz für Ihr glückliches und liebevolles Familienleben! Bereits beim Betreten des Hauses fallen die gerade Treppe und die Offenheit der Wohnfläche im Erdgeschoss des Hauses auf. Der geräumige Koch- und Essbereich bietet Platz für Ihren großen Esstisch und wird garantiert der Lieblingstreffpunkt für Ihre Familie. Angenehm ist die optische Trennung im sonst offenen Ess- und Wohnbereich Durch die große Glastür betreten Sie Ihre sonnige Terrasse mit Blick in Ihren herrlichen Garten. Das separate Arbeitszimmer können Sie als Homeoffice, als Gäste- oder Kinderzimmer nutzen. Auf der modernen geraden Holztreppe gelangen Sie ins Dachgeschoss. Hier fällt der geräumige Flur auf, in dem Sie sich einen Lesebereich oder sogar noch eine kleine Büroecke einrichten können. Wunderschön das Elternschlafzimmer mit der separaten Ankleide und dem zugeordneten großen Bad. Beide Kinder erhalten identische Zimmer, dem ein zusätzliches Bad mit WC und Dusche zugeordnet ist.
Selbstverständlich können Sie die Grundrisse Ihren Wünschen anpassen oder sich für eines oder mehrere der schicken Anbauteilen entscheiden!
Haustyp: Einfamilienhaus
Provisionspflichtig: nein
Küche: Einbauküche
Bad: Dusche, Wanne, Fenster
Anzahl Schlafzimmer: 4
Anzahl Badezimmer: 2
Terrasse: 1
Gäste-WC: ja
Qualität der Ausstattung: gehoben
Bauphase: Haus in Planung (projektiert)
Zustand: Haus in Planung (projektiert)
Wir sollten uns über Ihre Grundstückswünsche unterhalten. Vielleicht kommen auch andere Orte in Frage? Derzeit verfüge ich über weitere Grundstücke in der Region.
Sie haben bereits ein eigenes Grundstück? Glückwunsch! Natürlich bauen wir auch auf Ihrem Grundstück gemeinsam Euer Traumhaus.
Also einfach anrufen unter 0171 4863595, es gibt für (fast) alles eine überzeugende Lösung!
Bitte berücksichtigt: ich bin kein Immobilienmakler, sondern verkaufe mit sehr viel Herz und Kompetenz Häuser. Im Interesse der jeweiligen Grundstückseigentümer sowie meiner Bauherren werde ich also ohne ein persönliches Gespräch zum Thema Hausbau auf keinen Fall und ohne Ausnahmen konkrete Grundstücksdaten weitergeben! Meine Angaben zum Grundstück erfolgen freibleibend und unverbindlich. Irrtum und Zwischenverkauf bleiben vorbehalten. Den auf die einzelnen Gundstücke bezogenen Angaben liegen die mir gegenüber erteilten Auskünfte und Informationen zugrunde. Trotz sorgfältiger Prüfung kann ich daher eine Haftung für deren Richtigkeit und Vollständigkeit nicht übernehmen. Und … natürlich ist es mir selbst mit bestem Willen nicht möglich, eine dauerhafte Verfügbarkeit der Grundstücke zu garantieren. Es gibt jedes Grundstück nur einmal – leider 😉
Das könnte Ihnen auch gefallen

Göran Linke - Freie Handelsvertretung der Living Fertighaus GmbH
Herr Göran Linke
Württemberger Str.77
09114 Chemnitz
Telefon: +49 171 4863595
08280 Aue
































