Reinsdorf:
NUTZEN SIE JETZT IHRE CHANCE AUF EIN GLÜCKLICHES FAMILIENLEBEN IM EIGENEN HAUS!
Objekt-Nr.: 30269-23356


Baugrundstücksservice für Baufamilien

Hausansicht - Gartenseite

Erdgeschoss

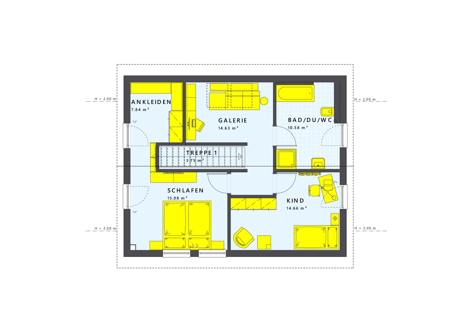
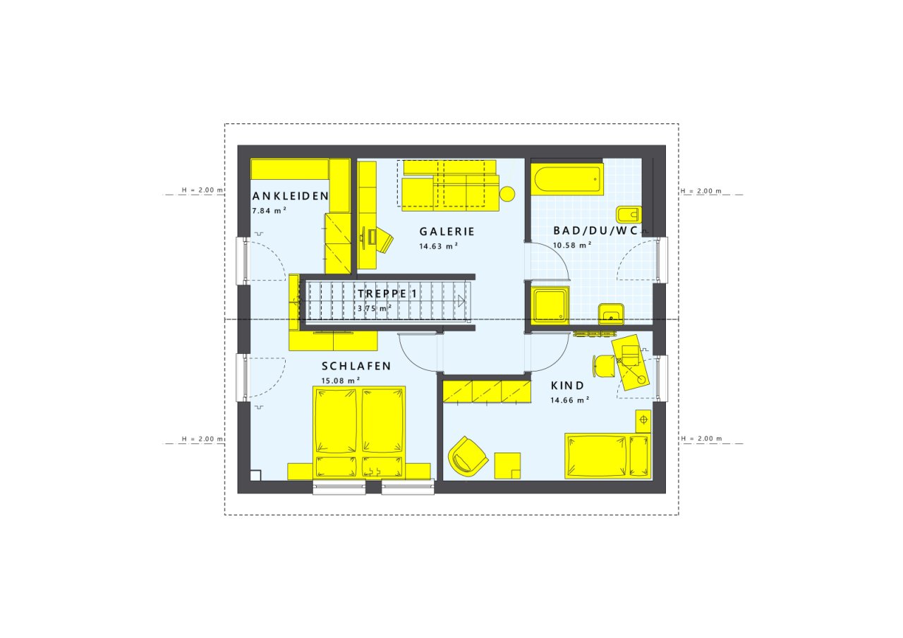
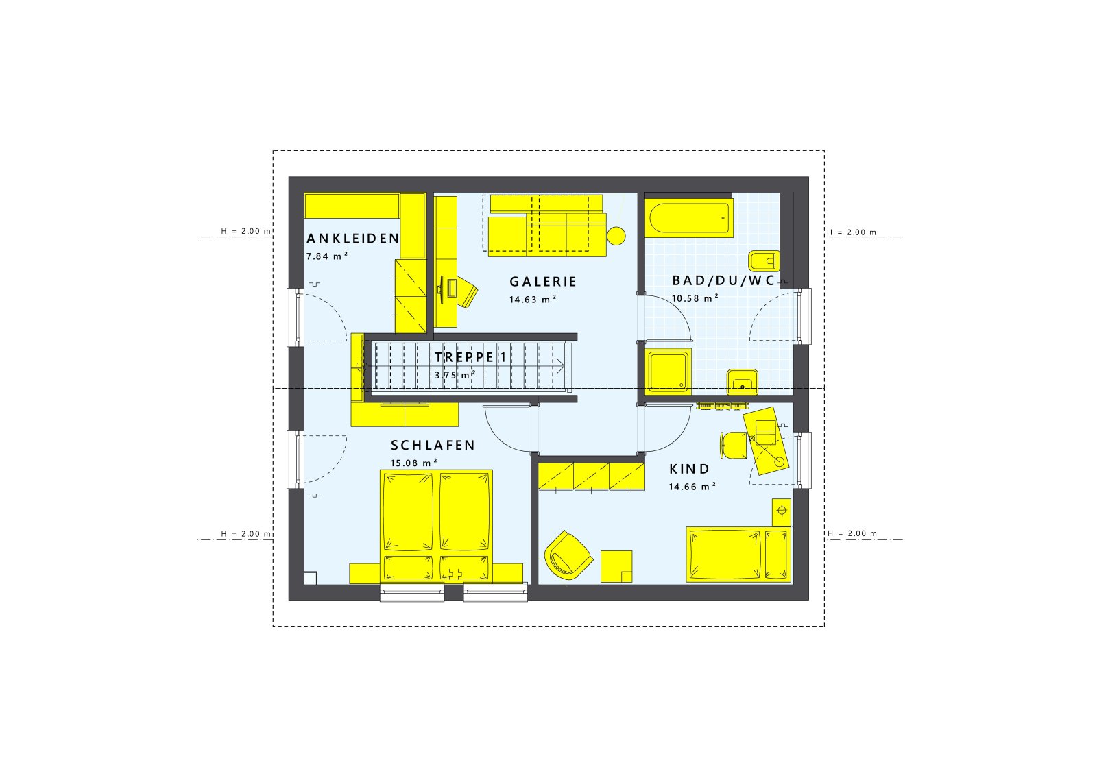
Dachgeschoss mit Galerie

offene Küche mit Ess- und Wohnbereich

sonniges Wohnzimmer mit Blick in den Garten

Galerie

Kinderzimmer

modernes Bad mit ebenerdiger Dusche

Schlafen











Preis:
429.900 €
Wohnfläche ca.:
130 m²
Grundstück ca.:
660 m²
Zimmeranzahl:
5
Endlich genug Platz für Sie und Ihre Lieben! Dieses moderne Einfamilienhaus mit einem genialen Grundriss bietet Ihnen und Ihrer Familie alle Annehmlichkeiten des modernen und entspannten Wohnens! Bereits beim Betreten des Hauses gefällt der separate Bereich aus Garderobe und Gäste-WC neben der Eingangstür. Vom Flur aus schauen Sie direkt in den offenen, großzügig gestalteten Koch-, Ess- und Wohnbereich - ideal zum Reden, Spielen, Feiern und Entspannen. Optimal für Ihr Homeoffice oder ein Kinderzimmer ist der zusätzliche Raum im Erdgeschoss. Im Dachgeschoss freuen sich Mama und Papa über ihr gemütliches Schlafzimmer mit dem separaten Ankleideraum. Beide Kinder erhalten ein eigenes Reich zum Schlafen, Spielen und Kuscheln. Dazu gibt es hier ein modernes Familienbad mit Badewanne und Dusche. Natürlich können Sie den Grundriss nach Ihren Wünschen umgestalten!
Haustyp: Einfamilienhaus
Etagenanzahl: 1
Provisionspflichtig: nein
Küche: Einbauküche
Bad: Dusche, Wanne, Fenster
Anzahl Schlafzimmer: 3
Anzahl Badezimmer: 1
Terrasse: 1
Gäste-WC: ja
Qualität der Ausstattung: gehoben
Bauphase: Haus in Planung (projektiert)
Zustand: Haus in Planung (projektiert)
Wir sollten uns über Ihre Grundstückswünsche unterhalten. Vielleicht kommen auch andere Orte in Frage? Derzeit verfüge ich über weitere Grundstücke in der Region.
Sie haben bereits ein eigenes Grundstück? Glückwunsch! Natürlich bauen wir auch auf Ihrem Grundstück gemeinsam Ihr Traumhaus.
Also einfach anrufen unter 0171 4863595. Es gibt für (fast) alles eine überzeugende Lösung!
Bitte berücksichtigt: ich bin kein Immobilienmakler, sondern verkaufe mit sehr viel Herz und Kompetenz Häuser. Im Interesse der jeweiligen Grundstückseigentümer sowie meiner Bauherren werde ich also ohne ein persönliches Gespräch zum Thema Hausbau auf keinen Fall und ohne Ausnahmen konkrete Grundstücksdaten weitergeben! Meine Angaben zum Grundstück erfolgen freibleibend und unverbindlich. Irrtum und Zwischenverkauf bleiben vorbehalten. Den auf die einzelnen Grundstücke bezogenen Angaben liegen die mir gegenüber erteilten Auskünfte und Informationen der Anbieter zugrunde. Trotz sorgfältiger Prüfung kann ich daher eine Haftung für deren Richtigkeit und Vollständigkeit nicht übernehmen. Und … natürlich ist es mir selbst mit bestem Willen nicht möglich, eine dauerhafte Verfügbarkeit der Grundstücke zu garantieren. Es gibt jedes Grundstück nur einmal – leider 😉
Das könnte Ihnen auch gefallen

Göran Linke - Freie Handelsvertretung der Living Fertighaus GmbH
Herr Göran Linke
Württemberger Str.77
09114 Chemnitz
Telefon: +49 171 4863595
08141 Reinsdorf

































