Limbach-Oberfrohna:
GENIESSEN SIE IHREN RUHESTAND IN IHREM NEUEN BUNGALOW! TEL. 01714863595
Objekt-Nr.: 30269-23306

Bungalow mit Sonnenerker und überdachtem Freisitz

Bungalow mit Sonnererker und Freisitz auf der Terrasse

Wohnen Sie ruhig in Waldnähe...

sonniges Wohnzimmer mit offener Küche

offene Küche

Schlafzimmer

Bad mit bodentiefer Dusche

Kinderzimmer








Preis:
469.990 €
Wohnfläche ca.:
118 m²
Grundstück ca.:
625 m²
Zimmeranzahl:
4
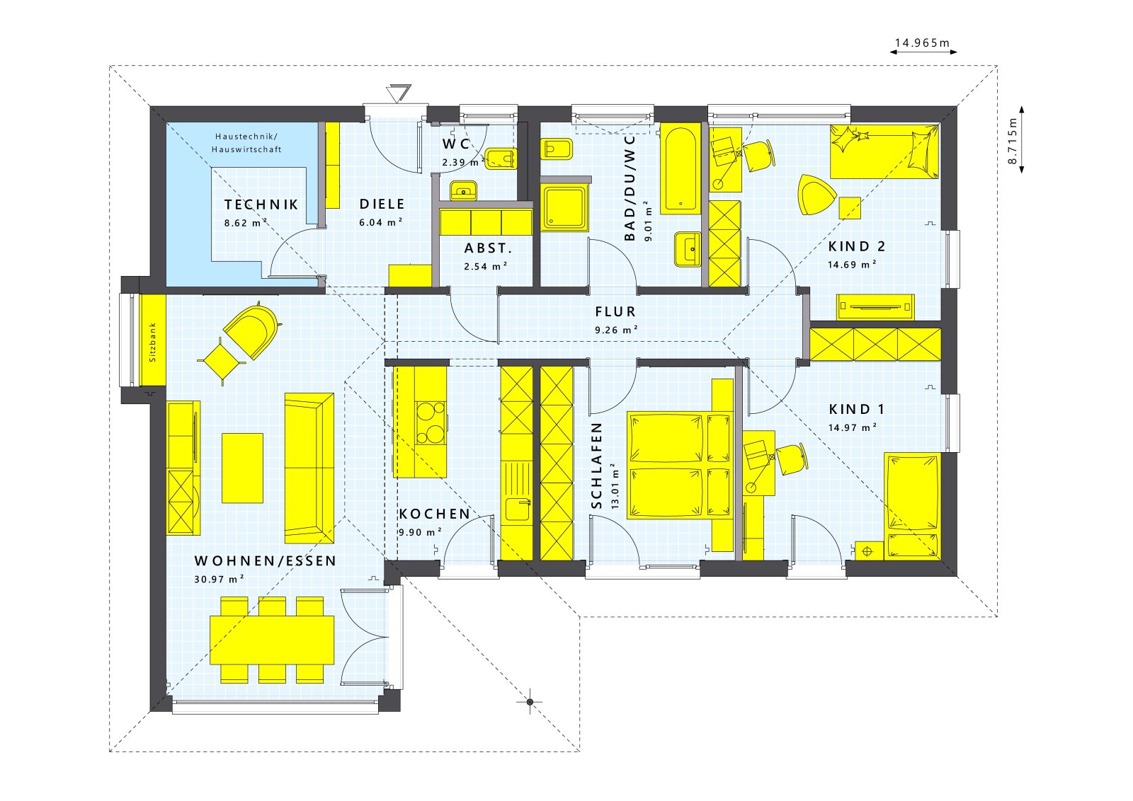
Dieser moderne Bungalow erfüllt einer Familie mit 2 Kindern alle Wünsche von einem pflegeleichten und modernen Zuhause auf einer Ebene! Genial ist der Bungalow auch als Altersruhesitz. Schon beim Betreten des Hauses fallen die Offenheit und Helligkeit des Wohnens auf. Geniessen Sie die Vorteile des großen Koch-, Wohn- und Eßbereiches mit Ausgang zur sonnigen Terrasse. Neben einem behaglichen Schlafzimmer für die Eltern gibt es zwei geräumige Kinderzimmer und ein schickes Badezimmer. Wunderschön der "nahtlose" Übergang auf Ihre Terrasse und in den Garten. Natürlich können Sie den Grundriß auch nach Ihren persönlichen Wünschen gestalten.
Haustyp: Bungalow
Etagenanzahl: 1
Provisionspflichtig: nein
Küche: Einbauküche
Bad: Dusche, Wanne, Fenster
Anzahl Schlafzimmer: 3
Anzahl Badezimmer: 1
Terrasse: 1
Gäste-WC: ja
Dachboden: ja
Klimaanlage: ja
Qualität der Ausstattung: gehoben
Bauphase: Haus in Planung (projektiert)
Zustand: Haus in Planung (projektiert)
Sie haben bereits konkrete Vorstellungen über die Lage Ihres Baugrundstückes? Wir können Ihnen mehrere Grundstücke in dieser Lage anbieten, deshalb sollten wir uns über Ihre Grundstückswünsche unterhalten. Vielleicht kommen auch noch andere Orte in Frage?
Sie haben bereits ein eigenes Grundstück? Glückwunsch! Natürlich bauen wir auch auf Ihrem Grundstück gemeinsam Ihr Traumhaus.
Also einfach anrufen unter 0171 4863595, es gibt für (fast) alles eine überzeugende Lösung!
Bitte berücksichtigen Sie: ich bin kein Immobilienmakler, sondern verkaufe mit sehr viel Herz und Kompetenz Häuser. Im Interesse der jeweiligen Grundstückseigentümer sowie meiner Bauherren werde ich also ohne ein persönliches Gespräch zum Thema Hausbau auf keinen Fall und ohne Ausnahmen konkrete Grundstücksdaten weitergeben! Meine Angaben zum Grundstück erfolgen freibleibend und unverbindlich. Irrtum und Zwischen-verkauf bleiben vorbehalten. Den auf die einzelnen Grundstücke bezogenen Angaben liegen die mir gegenüber erteilten Auskünfte und Informationen der Anbieter zugrunde. Trotz sorgfältiger Prüfung kann ich daher keine Haftung für deren Richtigkeit und Vollständigkeit übernehmen. Und … natürlich ist es mir selbst mit bestem Willen nicht möglich, eine dauerhafte Verfügbarkeit der Grundstücke zu garantieren. Es gibt jedes Grundstück nur einmal – leider 😉
Das könnte Ihnen auch gefallen

Göran Linke - Freie Handelsvertretung der Living Fertighaus GmbH
Herr Göran Linke
Württemberger Str.77
09114 Chemnitz
Telefon: +49 171 4863595
09212 Limbach-Oberfrohna


































