Zschopau:
ENTSPANNT UND SICHER LEBEN - IN IHREM NEUEN BUNGALOW INKL. SICHERHEITSPAKET! TEL.: 01714863595
Objekt-Nr.: 30269-23284

Traumhafte Außenansicht

Burg Zschopau

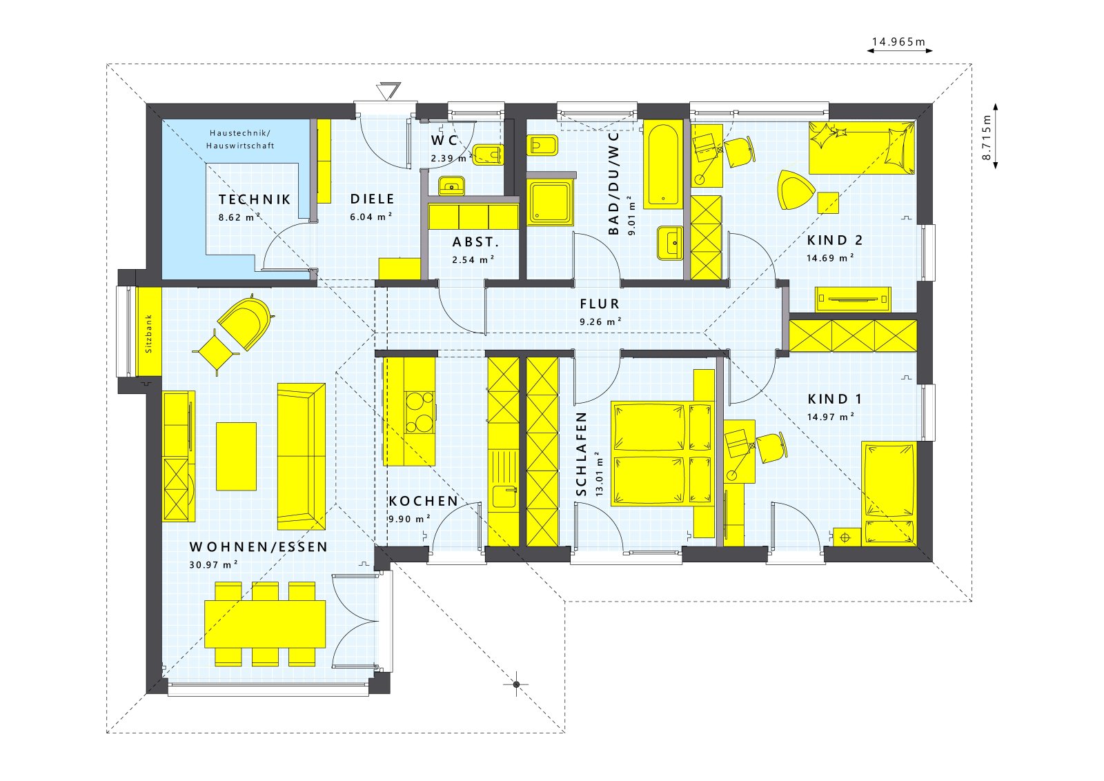
Grundriß mit Sonnenerker und Freisitz

Grundstücksservice für Baufamilien

...und wenn doch nicht, dann suchen wir für Dich!


Einbauküche inklusive

Kinderzimmer

Schlafzimmer

Bad mit bodentiefer Dusche










Preis:
489.990 €
Wohnfläche ca.:
120 m²
Grundstück ca.:
998 m²
Zimmeranzahl:
4
Diesen Bungalow sehen – und sofort verlieben! So geht es vielen unserer Baufamilien, die vom Wohnen mit Urlaubsfeeling träumen – und sicher auch Ihnen! Hier können Sie und Ihre Familie das entspannte Wohnen auf einer Ebene genießen. Der offene Wohn-Koch- und Essbereich ist der geniale Treffpunkt für Ihre ganze Familie. Es gibt ein geräumiges Familienbad und drei wunderschöne, lichtdurchflutete Schlafzimmer. Durch die bodentiefen Fenstertüren können Sie von allen Wohnräumen aus direkt Ihre Terrasse und den Garten erreichen und im Sommer nach dem Aufstehen barfuß durch das weiche, noch taunasse Gras taunasse zu Ihrem Pool laufen. Bitte fragen Sie bei Interesse nach unserem Sorglos-Sicherheitspaket für Ihr neues Haus.
Haustyp: Bungalow
Etagenanzahl: 1
Provisionspflichtig: nein
Küche: Einbauküche
Bad: Dusche, Wanne, Fenster
Anzahl Schlafzimmer: 4
Anzahl Badezimmer: 1
Terrasse: 1
Gäste-WC: ja
Dachboden: ja
Klimaanlage: ja
Ausblick: Fernblick
Qualität der Ausstattung: gehoben
Bauphase: Haus in Planung (projektiert)
Zustand: Haus in Planung (projektiert)
Wir sollten uns über Ihre Grundstückswünsche unterhalten. Vielleicht kommen auch andere Orte in Frage? Derzeit verfüge ich über weitere Grundstücke in der Region.
Sie haben bereits ein eigenes Grundstück? Glückwunsch! Natürlich bauen wir auch auf Ihrem Grundstück gemeinsam Euer Traumhaus.
Also einfach anrufen unter … - es gibt für (fast) alles eine überzeugende Lösung!
Bitte berücksichtigt: ich bin kein Immobilienmakler, sondern verkaufe mit sehr viel Herz und Kompetenz Häuser. Im Interesse der jeweiligen Grundstückseigentümer sowie meiner Bauherren werde ich also ohne ein persönliches Gespräch zum Thema Hausbau auf keinen Fall und ohne Ausnahmen konkrete Grundstücksdaten weitergeben! Meine Angaben zum Grundstück erfolgen freibleibend und unverbindlich. Irrtum und Zwischenverkauf bleiben vorbehalten. Den auf die einzelnen Gundstücke bezogenen Angaben liegen die mir gegenüber erteilten Auskünfte und Informationen zugrunde. Trotz sorgfältiger Prüfung kann ich daher eine Haftung für deren Richtigkeit und Vollständigkeit nicht übernehmen. Und … natürlich ist es mir selbst mit bestem Willen nicht möglich, eine dauerhafte Verfügbarkeit der Grundstücke zu garantieren. Es gibt jedes Grundstück nur einmal – leider 😉
Das könnte Ihnen auch gefallen

Göran Linke - Freie Handelsvertretung der Living Fertighaus GmbH
Herr Göran Linke
Württemberger Str.77
09114 Chemnitz
Telefon: +49 171 4863595
09405 Zschopau
































