Mittweida:
ERFÜLLEN SIE SICH IHREN TRAUM VON FAMILIENGLÜCK IM EIGENEN HAUS! TEL. 01714863595
Objekt-Nr.: 30269-23253

Hausansicht - Gartenseite

Grundstücksservice für Baufamilien

Grundriß Erdgeschoß

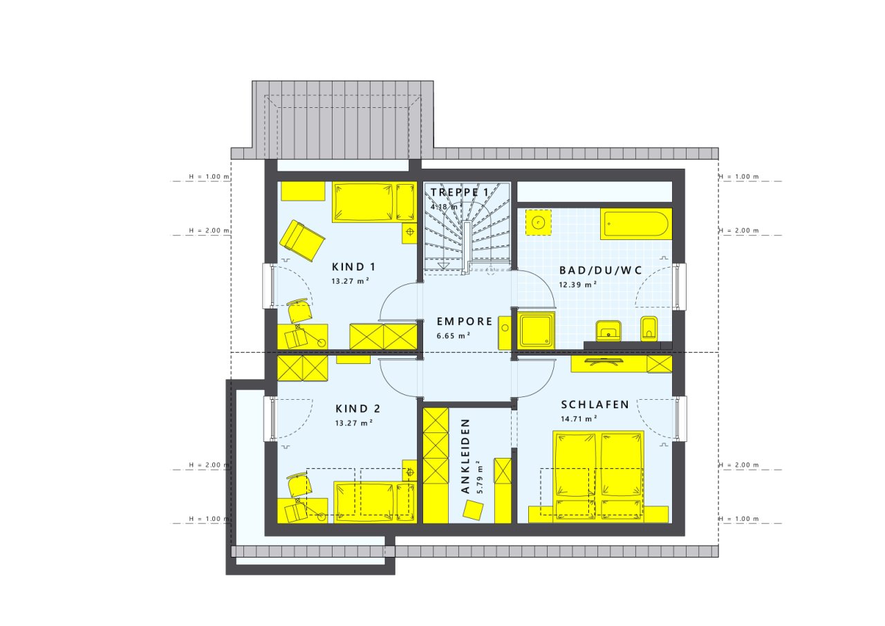
Grundriss Dachgeschoss

Kochen

Wohn- und Esszimmer

Arbeitszimer

Schlafzimmer

Bad

Kinderzimmer










Preis:
459.990 €
Wohnfläche ca.:
144 m²
Grundstück ca.:
789 m²
Zimmeranzahl:
5
IHR GRÖSSTER TRAUM KANN JETZT WAHR WERDEN: ein glückliches und entspanntes Familienleben im eigenen Traumhaus! Dieses ungewöhnliche Haus bietet Ihrer Familie alle Annehmlichkeiten für ein erfülltes und glückliches Familienleben! Beim Betreten des Hauses fallen sofort die gerade Treppe und der großzügige Flur sowie der offene Wohn-, Koch- und Essbereich auf. Die Küche bietet Platz für einen großen Esstisch. Dieser wird sicher Ihr liebster Treffpunkt für Ihre ganze Familie und Ihre Freunde. Hier wird gemeinsam gekocht, gegessen, geredet, gelacht, gespielt oder einfach gemeinsam entspannt. Angenehm ist hier die optische Trennung von Wohnbereich und Küche. Ihre neue Einbauküche mit Kochinsel können Sie gleich mit bestellen. Besonders praktisch ist die separate Garderobe vor dem WC. Das separate Arbeitszimmer im Erdgeschoß kann natürIich auch als Kinder- oder Gästezimmer genutzt werden. Im Dachgeschoß können Sie alle Räume vom ebenfalls großzügigen Flur aus betreten. Hier befinden sich: ein Elternschlafzimmer mit Ankleidebereich und 2 geräumige Kinderzimmer und das Familienbad mit Wanne und Dusche. Der Flur bietet Platz für eine kleine Lese- oder Büroecke. Durch Änderungen der Grundrisse können Sie Ihr Haus nach Ihren persönlichen Wohnwünschen gestalten. Zudem können Sie die Wohnfläche erweitern. Zusätzlich stehen Ihnen verschiedene Anbauteile zur Verfügung, die Ihr Haus zu etwas ganz Besonderem machen.
Abbildung enthält kostenpflichtige Anbauteile!
Haustyp: Einfamilienhaus
Etagenanzahl: 1
Provisionspflichtig: nein
Küche: Einbauküche
Bad: Dusche, Wanne, Fenster
Anzahl Schlafzimmer: 4
Anzahl Badezimmer: 2
Terrasse: 1
Gäste-WC: ja
Klimaanlage: ja
Anzahl der Parkflächen: 2 x Außenstellplatz
Qualität der Ausstattung: gehoben
Bauphase: Haus in Planung (projektiert)
Zustand: Haus in Planung (projektiert)
Wir sollten uns über Ihre Grundstückswünsche unterhalten: das Grundstück könnte Ihnen gefallen? Oder vielleicht kommen auch andere Orte in Frage? Derzeit verfüge ich über weitere Grundstücke in der Region.
Sie haben bereits ein eigenes Grundstück? Glückwunsch! Natürlich bauen wir auch auf Ihrem Grundstück gemeinsam Euer Traumhaus.
Also einfach anrufen unter 0171 4863595, es gibt für (fast) alles eine überzeugende Lösung!
Bitte berücksichtigt: ich bin kein Immobilienmakler, sondern verkaufe mit sehr viel Herz und Kompetenz Häuser. Im Interesse der jeweiligen Grundstückseigentümer sowie meiner Bauherren werde ich also ohne ein persönliches Gespräch zum Thema Hausbau auf keinen Fall und ohne Ausnahmen konkrete Grundstücksdaten weitergeben! Meine Angaben zum Grundstück erfolgen freibleibend und unverbindlich. Irrtum und Zwischenverkauf bleiben vorbehalten. Den auf die einzelnen Gundstücke bezogenen Angaben liegen die mir gegenüber erteilten Auskünfte und Informationen zugrunde. Trotz sorgfältiger Prüfung kann ich daher eine Haftung für deren Richtigkeit und Vollständigkeit nicht übernehmen. Und … natürlich ist es mir selbst mit bestem Willen nicht möglich, eine dauerhafte Verfügbarkeit der Grundstücke zu garantieren. Es gibt jedes Grundstück nur einmal – leider 😉
Das könnte Ihnen auch gefallen

Göran Linke - Freie Handelsvertretung der Living Fertighaus GmbH
Herr Göran Linke
Württemberger Str.77
09114 Chemnitz
Telefon: +49 171 4863595
09648 Mittweida





























