Eibenstock:
GENIESSEN SIE IHR HARMONISCHES FAMILIENLEBEN IN IHREM NEUEN HAUS! TEL.: 01714863595
Objekt-Nr.: 30269-23252

Ihr zuverlässiger Partner beim Bau Ihres Traumhauses

Hausansicht - Sonnenseite -Terrasse und Garten

Grundstücksfindeservice für Baufamilien

Erdgeschoss

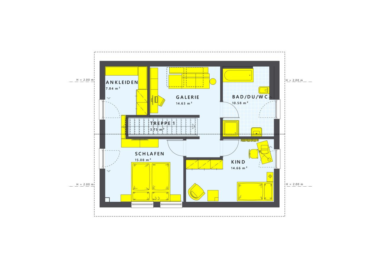
Dachgeschoß

Ihr sonniges Wohnzimmer

offene Küche mit Blick zum Essplatz

Kinderzimmer

Ein Bad zum Verlieben

Schlafzimmer










Preis:
419.990 €
Wohnfläche ca.:
130 m²
Grundstück ca.:
646 m²
Zimmeranzahl:
5
Gemütliches Einfamilienhaus für eine Familie mit Kindern: der liebste Treffpunkt ist der offene Koch-, Ess- und Wohnbereich im Erdgeschoß. Sehr praktisch ist die Garderobe vor dem Gäste-WC. Das kleine Arbeitszimmer kann auch als Gästezimmer genutzt werden. Besonders schön ist die gerade Treppe. Von der sonnigen Galerie aus genießen Sie eine herrliche Aussicht über die wunderschöne Umgebung. Hier läßt sich ein gemütlicher Bereich zum Lesen, Spielen und Entspannen einrichten. Im Dachgeschoß freuen sich Ihre Kinder über ihre eigenen Zimmer und Mama und Papa über ihr gemütliches Schlafzimmer. Hier gibt es auch das Familienbad mit Dusche und Wanne. Natürlich können Sie die Grundrisse nach Ihren Vorstellungen ändern, das Haus vergrößern oder aus den vielen Anbauteilen Ihr Lieblingsextra wählen.
Haustyp: Einfamilienhaus
Etagenanzahl: 1
Provisionspflichtig: nein
Küche: Einbauküche
Bad: Dusche, Wanne, Fenster
Anzahl Schlafzimmer: 4
Anzahl Badezimmer: 1
Gäste-WC: ja
Qualität der Ausstattung: gehoben
Bauphase: Haus in Planung (projektiert)
Zustand: Haus in Planung (projektiert)
Das könnte Ihnen auch gefallen

Göran Linke - Freie Handelsvertretung der Living Fertighaus GmbH
Herr Göran Linke
Württemberger Str.77
09114 Chemnitz
Telefon: +49 171 4863595
08309 Eibenstock
































