Waldheim:
ZUHAUSE IM GLÜCK - IN IHREM NEUEN BUNGALOW AUF SONNIGEM GRUNDSTÜCK!
Objekt-Nr.: 30269-23291

Ihr traumhafter Bungalow mit Sonnenerker und Freisitz

Grundstücksfinde-Service für Baufamilien

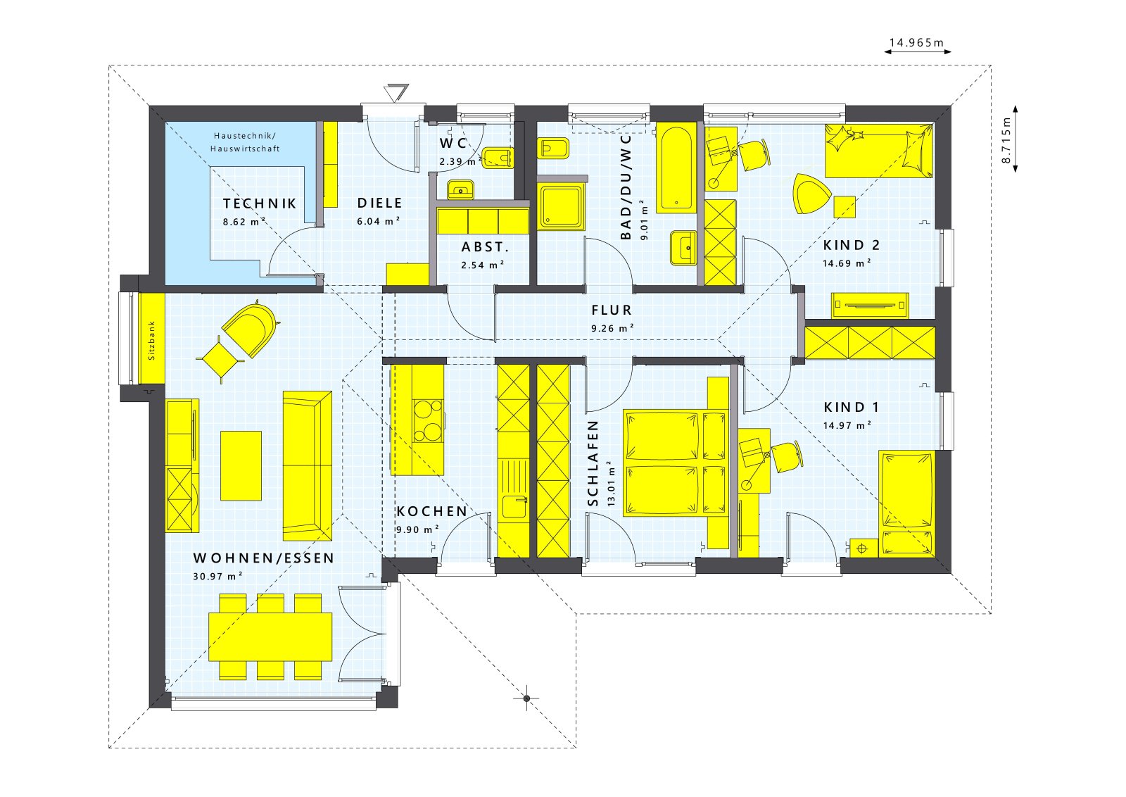
Grundriss mit Sonnenerker und Freisitz

Einbauküche - für Sie inklusive

Wohnen

Kinderzimmer

Schlafen

Bad mit bodentiefer Dusche








Preis:
449.990 €
Wohnfläche ca.:
120 m²
Grundstück ca.:
990 m²
Zimmeranzahl:
4
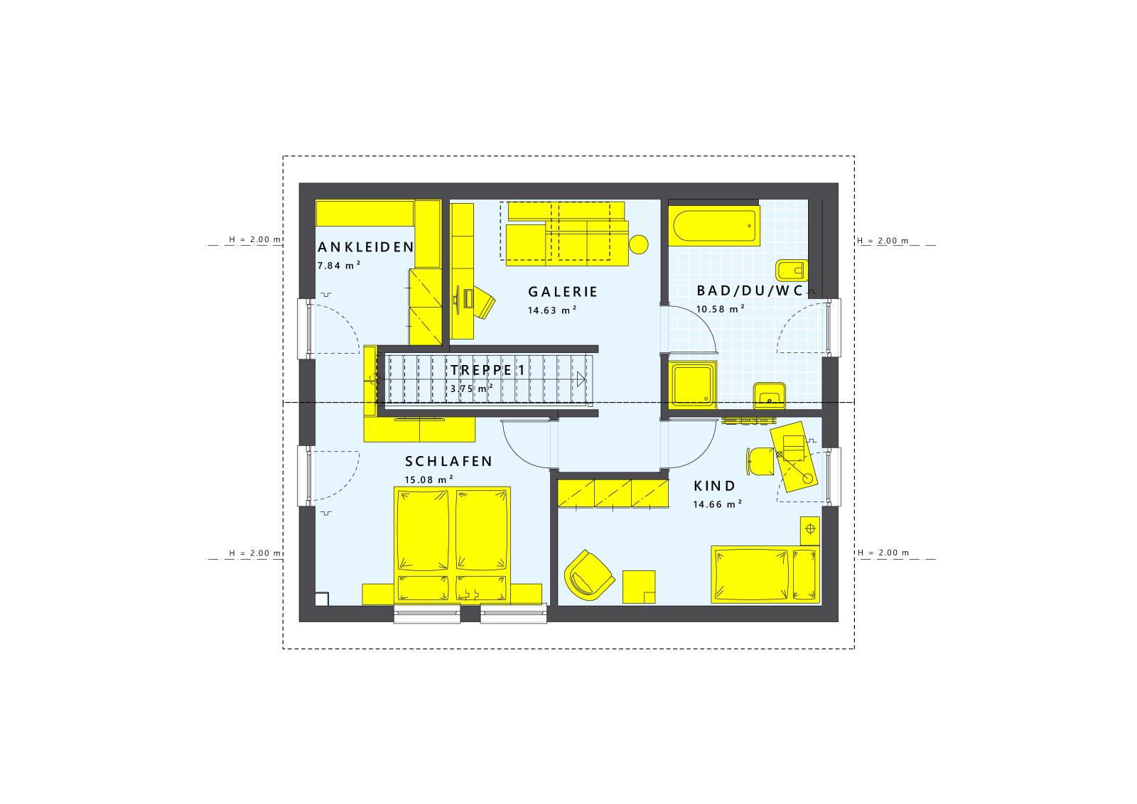
Dieser moderne Bungalow steht bei vielen Familien auf der Zuhause-Wunschliste an erster Stelle! Entspanntes Wohnen auf einer Ebene, ein ganzes Leben lang! Durch die zahlreichen großen Fenster können Sie unendlich viel Licht und Sonne genießen. Und wenn Ihnen die Wohnfläche nicht ausreicht, können Sie Ihren Bungalow durch schicke Bauteile ergänzen oder die Fläche einfach durch Verlängerungen Ihres Bungalows erweitern. Natürlich können Sie den Grundriß nach Ihren Wünschen gestalten.
Im o. g. Preis enthalten: Grundstück und Ausbauhaus als Effizienzhaus 55 inklusive Architektenleistung auf Bodenplatte. Nicht im Preis enthalten: kompletter Innenausbau und Baunebenkosten.
Die Haustechnik und die Innenausstattung ist nach Absprache wählbar.
Achtung, die Abbildungen enthalten kostenpflichtige Sonderausstattungen!
Haustyp: Bungalow
Etagenanzahl: 1
Provisionspflichtig: nein
Küche: Einbauküche
Bad: Dusche, Wanne, Fenster
Anzahl Schlafzimmer: 3
Anzahl Badezimmer: 1
Terrasse: 1
Gäste-WC: ja
Qualität der Ausstattung: gehoben
Bauphase: Haus in Planung (projektiert)
Zustand: Haus in Planung (projektiert)
Das könnte Ihnen auch gefallen

Göran Linke - Freie Handelsvertretung der Living Fertighaus GmbH
Herr Göran Linke
Württemberger Str.77
09114 Chemnitz
Telefon: +49 171 4863595
04736 Waldheim
































