Oberlungwitz:
FREUEN SIE SICH AUF FRÜHLINGSGLÜCK IM GARTEN IHRES EIGENEN HAUS! TEL.: 1714863595
Objekt-Nr.: 30269-23257

Hausansicht - Gartenseite mit Giebel und Erker

genießen Sie den Fliederduft im eigenen Garten

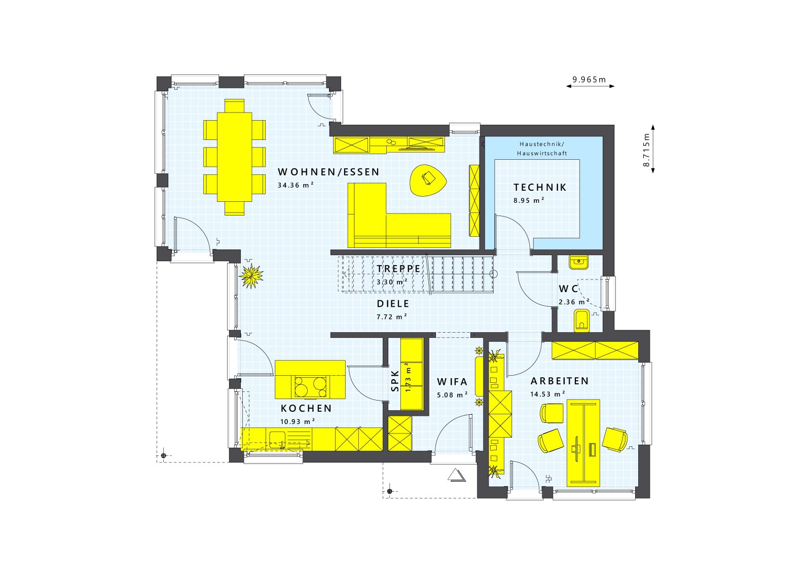
Grundriss Erdgeschoss

Grundriß Dachgescgoß

Einbauküche mit Kochinsel inklusive

Wohn- und Essbereich

Bad

Kinderzimmer

Schlafzimmer









Preis:
389.099 €
Wohnfläche ca.:
125 m²
Grundstück ca.:
605 m²
Zimmeranzahl:
5
Dieses gemütliche Haus bietet einer Familie mit Kindern alle Annehmlichkeiten für ein erfülltes und glückliches Leben!
Der offene Wohn-, Koch- und Essbereich ist der beliebte Treffpunkt für die ganze Familie und Freunde. Hier wird gemeinsam gekocht, gegessen, geredet, gelacht, gespielt ...oder einfach gemeinsam entspannt. Ihre neue Einbauküche ist sogar inklusive. Angenehm ist das kleine Arbeits- oder Gästezimmer im Erdgeschoß. Im Dachgeschoß befinden sich das Elternschlafzimmer, zwei geräumige Kinderzimmer und das Familienbad mit Wanne und Dusche. Durch Änderungen der Grundrisse können Sie Ihr Haus nach Ihren persönlichen Wohnwünschen gestalten. Sie können Ihr Haus auch durch Erweiterung der Grundfläche oder den Anbau eines der schicken Anbauteile vergrößern.
Haustyp: Einfamilienhaus
Etagenanzahl: 1
Provisionspflichtig: nein
Küche: Einbauküche
Bad: Dusche, Wanne, Fenster
Anzahl Schlafzimmer: 3
Anzahl Badezimmer: 1
Terrasse: 1
Gäste-WC: ja
Qualität der Ausstattung: gehoben
Bauphase: Haus in Planung (projektiert)
Zustand: Haus in Planung (projektiert)
Sicher haben Sie bereits konkrete Vorstellungen über die Lage Ihres Baugrundstückes. Deshalb sollten wir uns über Ihre Grundstückswünsche unterhalten. Vielleicht kommen auch andere Orte in Frage? Derzeit verfüge ich über weitere Grundstücke in der Region.
Sie haben bereits ein eigenes Grundstück? Glückwunsch! Natürlich bauen wir auch auf Ihrem Grundstück gemeinsam Ihr Traumhaus.
Also einfach anrufen unter 0171 4863595, es gibt für (fast) alles eine überzeugende Lösung!
Bitte berücksichtigen Sie: ich bin kein Immobilienmakler, sondern verkaufe mit sehr viel Herz und Kompetenz Häuser. Im Interesse der jeweiligen Grundstückseigentümer sowie meiner Bauherren werde ich also ohne ein persönliches Gespräch zum Thema Hausbau auf keinen Fall und ohne Ausnahmen konkrete Grundstücksdaten weitergeben! Meine Angaben zum Grundstück erfolgen freibleibend und unverbindlich. Irrtum und Zwischen-verkauf bleiben vorbehalten. Den auf die einzelnen Grundstücke bezogenen Angaben liegen die mir gegenüber erteilten Auskünfte und Informationen der Anbieter zugrunde. Trotz sorgfältiger Prüfung kann ich daher keine Haftung für deren Richtigkeit und Vollständigkeit übernehmen. Und … natürlich ist es mir selbst mit bestem Willen nicht möglich, eine dauerhafte Verfügbarkeit der Grundstücke zu garantieren. Es gibt jedes Grundstück nur einmal – leider 😉
Das könnte Ihnen auch gefallen

Göran Linke - Freie Handelsvertretung der Living Fertighaus GmbH
Herr Göran Linke
Württemberger Str.77
09114 Chemnitz
Telefon: +49 171 4863595
09353 Oberlungwitz































