Reichenbach:
ERFÜLLEN SIE SICH IHRE LEBENSTRÄUME: EINE FAMILIE, EIN EIGENES HAUS UND EINEN HUND!
Objekt-Nr.: 30269-23208

Endlich genug Platz für Ihren eigenen Hund!

Hausansicht

Erdgeschoß

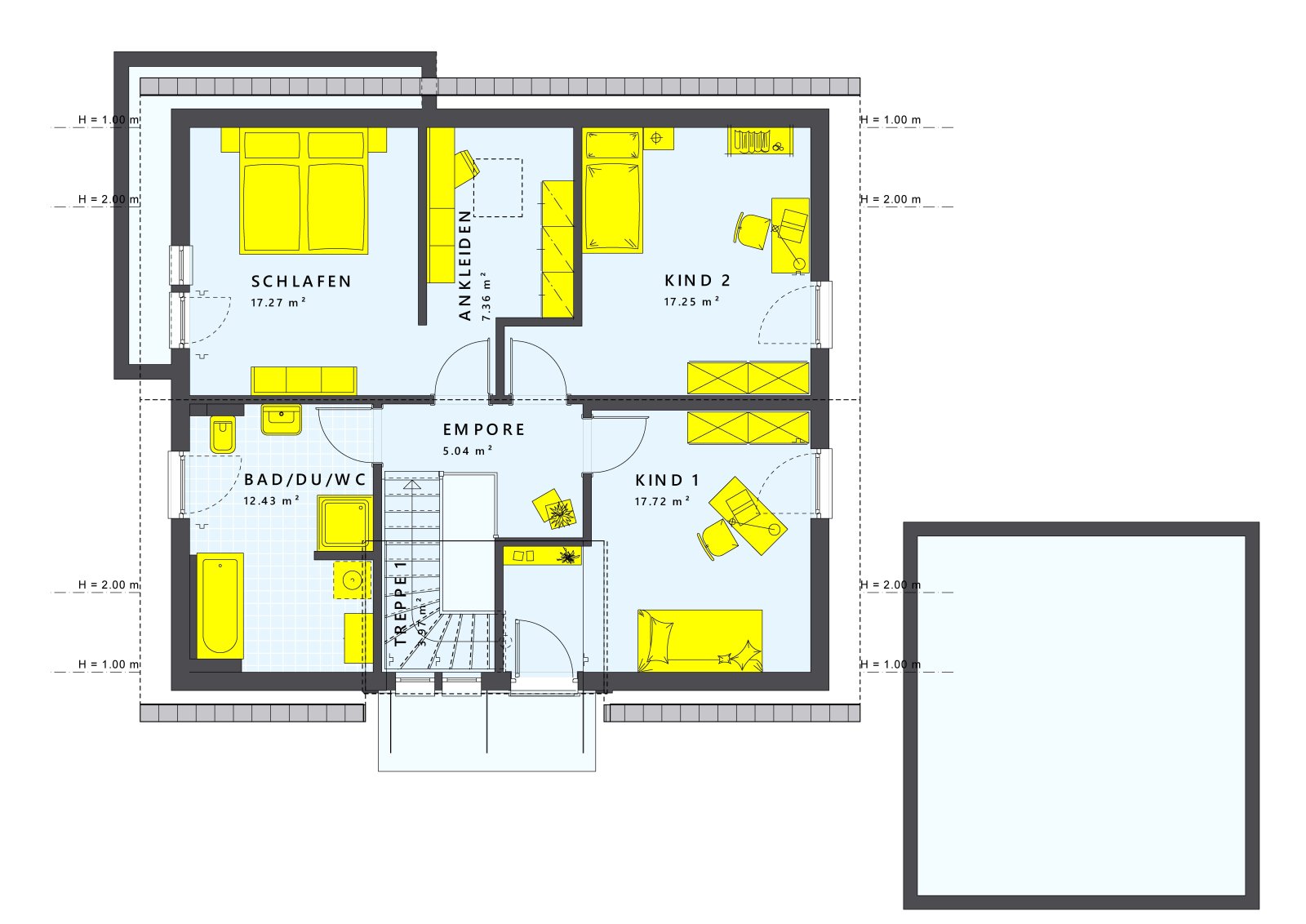
Dachgeschoß

Wohnen im schönen Erzgebirge

viel Licht im Wohnzimmer

schicke neue Einbauküche inklusive

Babyzimmer

Kuschelparadies

Kinderzimmer

Bad











Preis:
449.990 €
Wohnfläche ca.:
136 m²
Grundstück ca.:
700 m²
Zimmeranzahl:
4
Dieses gemütliche Haus bietet einer 4köpfigen Familie alle Annehmlichkeiten für ein entspanntes und glückliches Leben!
Besonders schön ist der große offene Familienbereich zum Kochen, Essen, Reden, Spielen und Feiern! Ihre neue Einbauküche mit Kochinsel wählen Sie sich nach Ihrem Geschmack aus. Sehr praktisch ist das Duschbad mit WC im Erdgeschoß - wenn mal wieder Alle gleichzeitig ins Bad möchten oder Gäste im Haus sind.
Im Dachgeschoß finden Jeder seinen eigenen gemütlichen Bereich zum Schlafen und Entspannen. Das Familienbad ist mit bodentiefer Dusche und Badewanne ausgestattet. Durch Änderungen der Grundrisse können Sie Ihr Haus nach Ihren Wünschen gestalten.
Sie haben sich gerade in dieses Haus verliebt? Dann bitte direkt anrufen: 01714863595 - Herr Linke
Haustyp: Einfamilienhaus
Etagenanzahl: 1
Provisionspflichtig: nein
Küche: Einbauküche
Bad: Dusche, Wanne, Fenster
Anzahl Schlafzimmer: 3
Anzahl Badezimmer: 2
Terrasse: 1
Qualität der Ausstattung: gehoben
Bauphase: Haus in Planung (projektiert)
Zustand: Haus in Planung (projektiert)
keine
Sie haben andere Vorstellungen? Dann sollten wir uns über Ihre Grundstückswünsche unterhalten. Vielleicht kommen auch andere Orte in Frage? Derzeit verfüge ich über weitere Grundstücke in der Region. Das Angebot wechselt natürliich ständig.
Sie haben bereits ein eigenes Grundstück? Glückwunsch! Natürlich bauen wir auch auf Ihrem Grundstück gemeinsam Euer Traumhaus.
Also einfach anrufen unter 0171 4863595, es gibt für (fast) alles eine überzeugende Lösung!
Bitte berücksichtigt: ich bin kein Immobilienmakler, sondern verkaufe mit sehr viel Herz und Kompetenz Häuser. Im Interesse der jeweiligen Grundstückseigentümer sowie meiner Bauherren werde ich also ohne ein persönliches Gespräch zum Thema Hausbau auf keinen Fall und ohne Ausnahmen konkrete Grundstücksdaten weitergeben! Meine Angaben zum Grundstück erfolgen freibleibend und unverbindlich. Irrtum und Zwischenverkauf bleiben vorbehalten. Den auf die einzelnen Gundstücke bezogenen Angaben liegen die mir gegenüber erteilten Auskünfte und Informationen zugrunde. Trotz sorgfältiger Prüfung kann ich daher eine Haftung für deren Richtigkeit und Vollständigkeit nicht übernehmen. Und … natürlich ist es mir selbst mit bestem Willen nicht möglich, eine dauerhafte Verfügbarkeit der Grundstücke zu garantieren. Es gibt jedes Grundstück nur einmal – leider 😉
Das könnte Ihnen auch gefallen

Göran Linke - Freie Handelsvertretung der Living Fertighaus GmbH
Herr Göran Linke
Württemberger Str.77
09114 Chemnitz
Telefon: +49 171 4863595

































